Полутораэтажный дом шале из бруса 9х9 с котельной Млада

  • О доме
  • Комплектация
  • Дополнительные услуги
  • Особенности
  • Фото домов
  • Видео
  • Описание проекта
  • Пишите нам
Этажность 1.5
Размеры 8,8x9,1
Площадь помещений 114,5

Описание проекта

Представляем вашему вниманию еще один достойный проект брусового дома, с простым названием "Млада". Название простенькое, легко запоминающее, но дом построен с учетом всех современных технологий и требований. Высокая комфортность при постоянном проживании за городом в любое время года. Внешне очень симпатичное строение, гармонично вписывающее в окружение из деревьев, зелени, соседних построек.

Дом с мансардой, площадью 114,5 м2, так что места хватит всем жильцам. Современное архитектурное оформление делает строение оригинальным и достойным украшением любого загородного участка. В доме расположены уютные жилые комнаты и удобная планировка.

На первом этаже предусмотрены:

  • совмещенные для использования кухня - гостиная вместительная, площадью 27,2 м2 с выходом на террасу;
  • терраса - вот поверьте, это станет излюбленным местом как для взрослой части населения, так и детишек, которые смогут играть и дышать свежим воздухом, в случае дождливой погоды на улице;
  • вместительный холл;
  • санузел;
  • спальня может быть как для гостей, а так же для более степенных, взрослых членов семьи, кому затруднительно подниматься на второй этаж;
  • котельная для установки отопительного оборудования.

Кстати спальню можно использовать на свое усмотрение, к примеру переделав ее под гостевую комнату, кабинет.

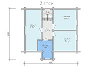
Мансардный этаж специально разработан для отдыха и сна:

  • санузел;
  • холл;
  • три отдельные спальни.

Брусовые дома примечательны тем, что не надо ждать когда пройдут природные процессы усадки. Геометрия таких строений стабильная, так что откладывать переезд не придется. Компания Домостроительные технологии гарантирует качественное и красивое строение за короткие сроки. Такой дом будет теплым и крепким, прослужит долго, радуя своих владельцев.

Цвет фасада вы можете подобрать самостоятельно или довериться нашим специалистам. На покрасочные работы, заказанные в нашей компании, даем гарантию до 5 лет. Внесем нужные вам изменения, пересмотрим перепланировку. Возведем проект быстро, качественно. Дому требуется внутренняя отделка? Справимся и с этой задачей. Подберем на ваше усмотрение отделочные материалы для потолка, стен, полов.

Хотите жить комфортно, тогда установим электроточки, отопительную систему, отводку воды, канализацию, электрообеспечение. Так же для безопасности и от непрошенных гостей, огородим надежным забором всю площадь участка. Поставим баню, организуем бассейн, зону отдыха. Звоните на указанные номера телефонов.

Читать далее

Дополнительные услуги

Технология "Теплый шов"
Покраска деревянного дома снаружи
Отделка имитацией бруса
Отделка вагонкой
Проектирование домов и коттеджей
Монтаж террас и веранд

Особенности проекта

Кухня-гостиная
Кухня-гостиная
4 спальные комнаты
4 спальные комнаты
2 санузла
2 санузла
Котельная
Котельная
Крытая терраса
Крытая терраса
Минимальный срок строительства
Минимальный срок строительства

Рекомендации эксперта

Павел Усманов, Архитектор

Павел Усманов

Архитектор

Что такое узлы «сила»? Это такие специальные саморезы с массивной пружиной. Их устанавливают в местах, где брус не придавлен дополнительной нагрузкой (нагрузка – это, например, вес кровельной системы). Это фронтоны, оконные и дверные проёмы, в местах, где нерационально ставить шпильки, потому что к ним нельзя будет подобраться и подкрутить при необходимости. Крепёж «Сила» располагается строго вертикально и стягивает два соседних венца (бруса) благодаря усилию пружины.

Видео с нашего youtube-канала

Свяжитесь с нами

Есть вопросы?